* Pentru zece dintre acestea au demarat deja procedurile de licitaţie pentru executarea lucrărilor, iar cinci ar putea fi gata până la sfârşitul anului
Parcul Viva poate fi considerat cel mai modern dintre locurile de relaxare, sport, joacă şi agrement ale Galaţiului, dar cu o floare nu se face primăvară. La fel se poate spune şi despre primul parc de cartier amenajat anul trecut, în Micro 39.
Galaţiul e plin de parcuri în suferinţă: Orăşelul Copiilor - despre modernizarea căruia se vorbeşte de anul trecut, Parcul CFR - ajuns un talmeş-balbeş, Parcul Eminescu - dominat de clădirea unui sexy-club. Dat în folosinţă anul trecut, de 1 Iunie, Parcul Rizer, modernizat pe fonduri europene, este încă marcat de o zonă lăsată pârloagă. Tocmai de aceea am încercat să aflăm direct de la primarul Marius Stan ce soartă vor avea cele mai importante parcuri gălăţene şi unde se vor putea juca ai noştri copii.
- Domnule primar, anul trecut, când aţi inaugurat primul parc de cartier, în Micro 39, aţi spus că este un proiect-pilot care va fi dezvoltat în toate cartierele. În ce stadiu sunt proiectele parcurilor de cartier?
- Aşa cum am promis, parcul din Micro 39 este un proiect-pilot, pe care vrem să-l implementăm în toate cartierele şi în special în cele cu o densitate foarte mare de blocuri şi o populaţie numeroasă, şi care nu beneficiază de nici un loc de relaxare, de agrement. Şi dacă adulţii pot veni pe Faleză, în Parcul Viva sau în Grădina Publică, pe un copilaş căruia i-ai dat drumul din casă la joacă, trebuie să ştii că l-ai lăsat în loc sigur.
La această dată este în derulare procedura de licitaţie pentru executarea a zece noi locuri de joacă, în mai multe zone din Galaţi: în Ţiglina I - blocurile I7-B4, respectiv, blocurile B2-D2, Siderurgiştilor Vest - blocurile 7A-7D, Micro 20 - blocurile E1-D1-J3 (două amplasamente), Micro 19 - blocurile P1-I1-I2, Micro 38 - blocurile N12-K3-N11-O3 şi trei locuri de joacă în cartierul Aurel Vlaicu - blocurile S9, J3 şi L1A-P5.
În viitorul imediat, după ce terminăm proiectarea, vom demara o nouă licitaţie pentru execuţia altor zece locuri de joacă în zonele: Ţigina II - blocurile B2-E5, Ţiglina I - bloc C20, Mazepa I - blocurile B1-C1, Siderurgiştilor Vest - blocurile 11E-11C, Micro 16 - blocurile C7-C6 şi blocurile A1-A2, Micro 17 - blocurile B1-N1, Micro 20 - blocurile A11-H1-H2, Micro 21 - blocurile M4-L6 şi Micro 40 - blocurile N3-T4.
- Când încep lucrările de amenajare şi câte parcuri vor fi gata până la finele acestui an?
- Mi-e greu să vă spun când ne apucăm efectiv de lucru, pentru că depindem de proceduri, iar la noi se prezintă la licitaţii şi licitatorii de profesie, care vin să încurce şi fac contestaţii după aceea. În condiţii normale, ar trebui ca în maximum o lună să terminăm procedurile de licitaţie. Din momentul în care se dă efectiv ordinul de începere a lucrărilor, execuţia durează maximum trei luni şi se poate lucra simultan la ele. De aceea, sper ca anul acesta să dăm gata cel puţin jumătate din locurile de joacă aflate în primul lot de zece.
- Locurile de joacă vor fi identice cu cel din Micro 39? Va fi necesară demolarea unor garaje pentru amenajarea lor?
- Nu trebuie să demolăm nimic, pentru că amplasamentele sunt pe nişte terenuri virane, pline de bălării, care zac nefolosite printre blocuri. Sperăm să nu vină cetăţenii din zonele respective să facă reclamaţie că li se tulbură liniştea, aşa cum am păţit în Micro 39. La fiecare vizită în zonă se găsea o doamnă sau un domn să ne certe că le-am stricat "peisagistica" - un gard de sârmă care proteja nişte bălării. Nu putem mulţumi pe toată lumea, dar măcar să mulţumim pe cât mai mulţi.
În ceea ce priveşte locurile de joacă, sunt diferite şi adaptate fiecărei zone. Cel mai mic are o suprafaţă de aproximativ 336 de metri pătraţi, iar cel mai mare se apropie de o mie de metri pătraţi. Suprafaţa lor va fi acoperită cu tartan, iar aparatele şi echipamentele moderne, civilizate. De exemplu, în Siderurgiştilor Vest, blocurile 7A-7D, pe lângă tobogan drept, tobogan elicoidal, leagăne, groapă de nisip, figurine pe arc, balansoar, un ansamblu de căţărare din lemn şi bănci, vom pune şi masă de tenis şi aparate de fitness. Locurile vor fi supravegheate, în viitorul apropiat ne propunem să avem supraveghere video în tot oraşul, un proiect mai pretenţios, dar necesar.
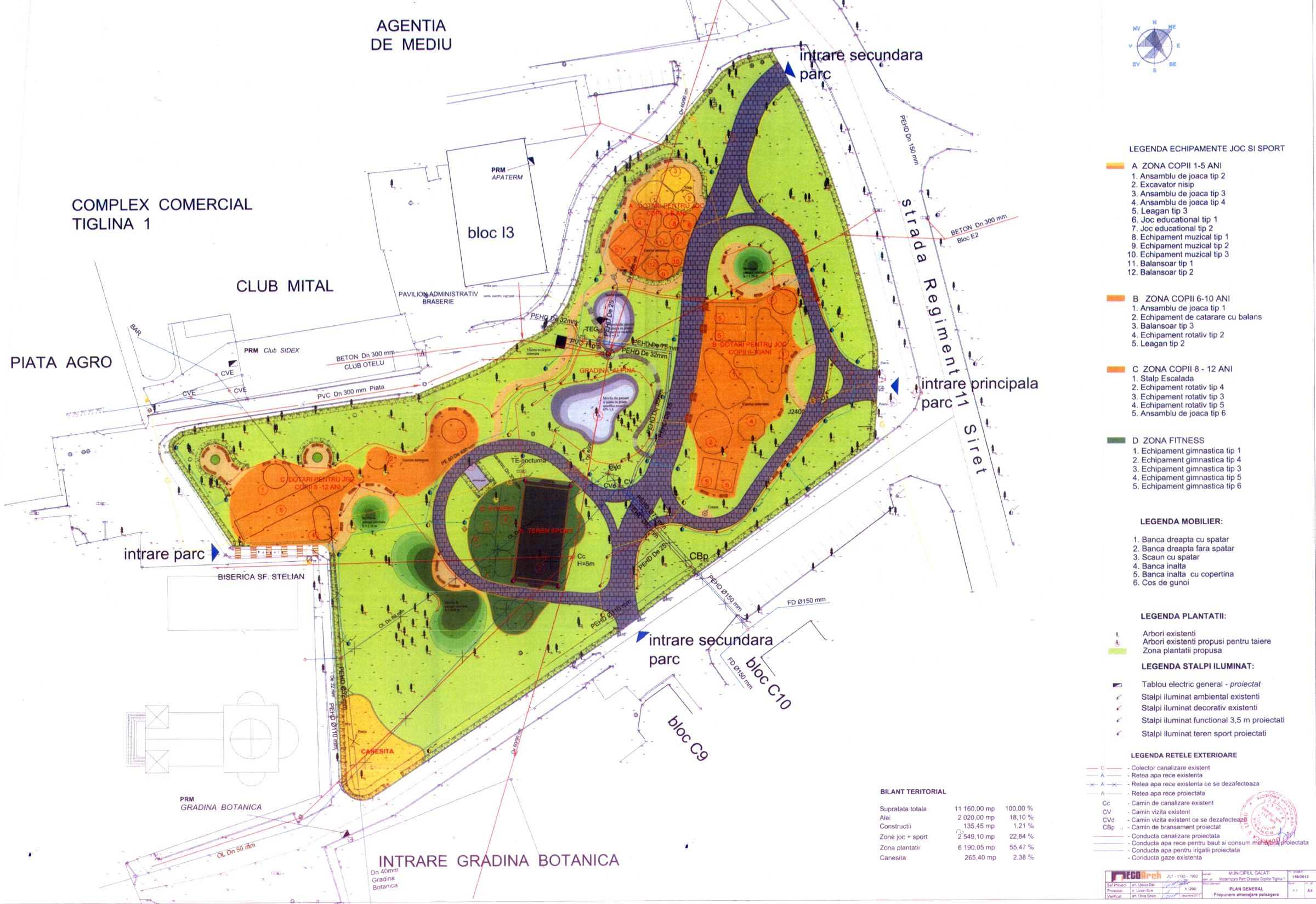
- Tot anul trecut, Consiliul Local a votat şi modernizarea parcului Orăşelul Copiilor, iar dumneavoastră aţi promis că va deveni un mini-Disneyland. Când încep lucrările de modernizare şi ce şanse sunt pentru a fi gata anul acesta?
- Proiectul de modernizare „Parc Orăşelul Copiilor” este finalizat. Proiectul a suferit în timp modificări, avem zone pentru toate grupele de vârstă: 1-5 ani, 6-10 ani, 8-12 ani, dar şi zonă de fitness cu teren de sport, şi va fi deosebit. Perioada de execuţie este de şase luni după ce trecem de adjudecarea licitaţiei. Dar faza de adjudecare nu depinde de noi. Pentru executarea lucrărilor este în derulare procedura de achiziţie. Pe 4 aprilie a fost transmis la ANRMAP anunţul pentru validare. Estimăm că licitaţia pentru execuţie va avea loc pe 15 mai 2014. Dacă procedurile nu se vor împotmoli, ca de multe ori, în hăţişul birocratic, sperăm să începem lucrările anul acesta. Ca să nu fiu foarte optimist, sper ca primăvara viitoare vom avea un Orăşel al Copiilor de cinci stele, deşi era ideal să-l avem anul acesta, de Crăciun. Dar în momentul în care e gata, atunci îi dăm drumul.
- În ceea ce priveşte Parcul CFR, ne declaraţi, la începutul anului, că va avea tiroliană. Mai este valabil acest plan?
- Vrem să transformăm Parcul CFR în Aventura Parc. Pentru amenajare, avem încheiat contract cu SC Mercoinstal SRL, firmă care a lucrat şi la parcul din Micro 39, şi care va elabora studiul de fezabilitate până pe 10 iunie 2014. Urmăm procedurile normale şi sperăm ca în primăvara viitoare să putem avea Aventura Parc, cu tiroliană şi activităţi de acelaşi gen. E un loc care se pretează la aşa ceva şi care o să dea valoare şi zonei respective, care astăzi este aproape părăsită. Va deveni un loc interesant pentru tot oraşul şi în special pentru iubitorii de adrenalină. Din momentul în care am realizat instalaţia de tiroliană, intrăm într-o renovare peisagistică a parcului, adecvată proiectului.
- Ce planuri aveţi cu Parcul Eminescu?
- Pentru Parcul Eminescu, anul acesta, este prins în buget studiul de fezabilitate pentru modernizare. Noi am dat tema de proiectare pentru acest parc. Clădirea din parc va fi desfiinţată în condiţiile legii, până la începerea lucrărilor de reabilitare şi de modernizare a parcului. Este o construcţie amplasată pe zona verde, deci nu e de comentat, indiferent ce autorizaţii are, terenul trebuie redat parcului, care este un loc emblematic pentru oraş şi trebuie să arate ca un parc. Sunt în zonă mai multe de demolat, cum ar fi chioşcurile de pe lângă Modern.
În cadrul acestui proiect vom avea în vedere şi restaurarea şi conservarea pe termen lung a statuii poetului. Devenim penibili montând mâna muzei la fiecare 15 ianuarie.
- Ce se mai întâmplă cu Parcul Rizer?
- În Parcul Rizer vom face o zonă extinsă de picnic pe terenul care a fost destinat iniţial Muzeului de Arte Vizuale. Din cauza procedurilor, a durat mai mult, dar am primit terenul de la Consiliul Judeţului. Nu facem altceva decât zonă de picnic, cu gazon şi instalaţie de stropit pentru că există posibilitatea ca, într-un timp relativ scurt, doi - cinci - zece ani, Consiliul Judeţului să primească bani pentru muzeu şi proiectul e pe zona respectivă. Dar o zonă de picnic, unde să mănânci un sandviş, să stai cu copilul mic într-un loc protejat e binevenit şi în două luni poate fi gata. E la noi cutuma asta: nu călcaţi iarba! Nu, iarba se calcă, nu la modul grosolan, să iei brazde, dar iarba udată şi tunsă la timp rezistă şi la călcat dacă o îngrijeşti. Putem apela inclusiv la un rulou de gazon, iar instalaţia de stropit se face în două săptămâni. Trebuie un pat de nisip pe care vine instalaţia de stropit care e conectată la un panou de comandă cu programare, nu trebuie să vii cu furtunul.
Plecând de la cultivat gazonul, zonele verzi de prin oraş - scuarul de pe Brăilei, parcurile, sensurile giratorii, aşa mi le doresc, ca în toate oraşele din ţările civilizate, cu gazon, flori şi instalaţie de stropit cu picătura.

