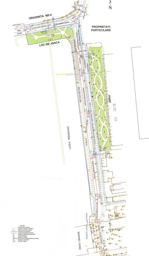
Potrivit Primăriei Galaţi, licitaţia pentru amenajarea unei parcări cu parc în Ţiglina II, în zona blocului E6, a fost câştigată de asocierea SC Obercons Comp SRL - SC Constructa Mecanique SRL. Contractul, în valoare totală de 1.614.987 de lei fără TVA, pentru proiectarea şi execuţia obiectivului de investiţii, urmează să fie semnat. "Termenul pentru realizarea lucrărilor de proiectare este de 90 de zile, iar cel pentru realizarea lucrărilor de execuţie este de 180 de zile din momentul predării amplasamentului. Conform caietului de sarcini, sunt prevăzute lucrări de amenajare a spaţiului de parcare situat în zona blocului E6, a aleii carosabile de acces şi a unui loc de joacă pentru copii", precizează Primăria.
Cine va construi PARCAREA cu parc din Ţiglina II Scris de Anca Melinte


Anca Melinte
Articole recente - Anca Melinte
Galațiul, prin ochii premianților Festivalului de Comedie De la 135 de lire - bani de buzunar, la o afacere de 2,4 milioane UPDATE. Cine sunt laureaţii Festivalului Naţional de Comedie 2025 de la Galaţi. Două trofee rămân acasă Peste 14,6 milioane de lei pentru deszăpezirea drumurilor județene Au început expertizele tehnice la surpările de pe Centură (FOTO)
Mai multe din această categorie: